リノベーション会社|フィールドガレージ

01/00

マンション

コンパクトに心地よく整える。淡いグレーと木の住まい【横浜市 マンション リノベーション】

横浜市にある築25年のマンションをフルリノベーションした事例です。

昔からインテリアがお好きだったO様。「いつか自分の理想の空間をつくりたい」という想いから、今回のリノベーションを決意され、物件探しからご依頼頂きました。

テーマは、淡いグレー・白・明るめの木をベースにした、やさしく可愛い空間。タイルやペンダントライト、アーチのデザインなど、細部にまでこだわりを取り入れました。

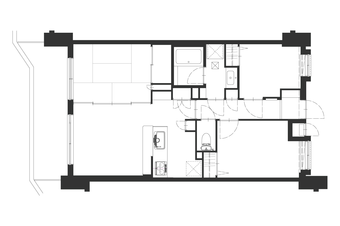
将来の家族構成を見据え、個室は3部屋確保。約16帖の広々としたLDKに加え、ランドリースペースやウォークインクローゼットも新たに設け、コンパクトながら快適で使いやすい間取りを実現しています。

約62㎡の限られた面積の中でも、暮らしやすさと将来性を両立しつつ、好きなインテリアを楽しめる住まいに。淡い落ち着いた色合いに明るい木の質感が加わり、やさしく温かみのある空間が完成しました。

DATA

  • 物件タイプ
    マンション
  • 所在地
    神奈川県横浜市
  • 床面積
    62.41㎡
  • 家族構成
    大人2人
  • 構造種別
    RC造
  • 築年
    2000年
  • 設計期間
    3ヶ月
  • 工事期間
    3ヶ月
  • 物件番号
    A164

SKETCH

BEFORE & AFTER

  • 間取り
  • LDK
  • KITCHEN
  • HALL
  • LAVATORY
BEFORE
AFTER
BEFORE
AFTER
BEFORE
AFTER
BEFORE
AFTER
BEFORE
AFTER

DETAIL

約16帖のLDKスペース。明るめの木をベースにした優しい可愛らしい空間に。

床は、寄木デザインのパーケットフローリングを採用。

キッチンは、コンロの前にあった壁を取払い、フルオープンの対面式に変更。

木の扉のキッチンは、WOODONEのスイージーを採用しました。

キッチン背面のカップボード。アーチの天井にガラスグローブのライトとグレーのタイルを取り入れてお部屋のお気に入りポイントに。

リビングの一角に設けた半個室スペース。様々な用途でフレキシブルに活用できるようにしています。

チェッカーガラスの木製上げ下げ窓。

リビング収納は、、

扉を開けるとチェックのクロス貼り。

インターホンニッチには、こだわりのアンティーク風のスイッチとウォールライトを取付。

エリアによって変化をつけた床の仕上げが程よいアクセントに。

格子のガラスが可愛い木製ドア。

無機質になりがちな廊下もRの壁を取り入れてやわらかな雰囲気に。

脱衣スペースは、広めに確保。ハンガーバーを取付し、ランドリールームとしても活用できます。

トイレはグレーのクロスと白いボーダータイルをアクセントに。

洗面台は、パブリック導線の廊下の一角にあるので使い勝手良く、インテリアの一部として楽しめます。

タイル貼りのカウンターと木を組み合わせたオリジナル仕様。

洗面の奥には、アーチ開口でつながるウォークインクローゼットを配置。ご家族の洋服をまとめて収納できます。

R壁やオープン洗面台など変化があり楽しい玄関と廊下の空間。

旦那様用の個室は、コンクリ調の塩ビタイルや鉄管配管などを使い少し無骨な雰囲気に。リモートワーク用のデスクを造作。

奥様の個室は優しいニュアンスのペールブルーグレーのアクセントウォールに。

玄関には、大容量の靴収納と飾り棚を設けました。

玄関框は、柄付きのタイル貼り。住まいに入った瞬間からインテリアを楽しめるポイントになっています。

DATA

  • 物件タイプ
    マンション
  • 所在地
    神奈川県横浜市
  • 床面積
    62.41㎡
  • 家族構成
    大人2人
  • 構造種別
    RC造
  • 築年
    2000年
  • 設計期間
    3ヶ月
  • 工事期間
    3ヶ月
  • 物件番号
    A164

SKETCH

RELATED WORKS

その他の施工事例

EMBRACING YOUR UNIQUENESS, RENOVATIONS THAT RESONATE WITH YOU.
EMBRACING YOUR UNIQUENESS, RENOVATIONS THAT RESONATE WITH YOU.
お問い合わせ
イベント申し込み
イベントに
申し込む