やさしい光と素材に包まれて。レトロが香る住まい【東京都品川区 マンションリノベーション】
物件探しからお手伝いさせていただいたM様。
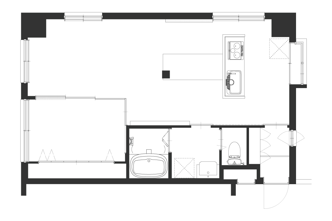
北向きながらも3面にある窓からは安定的に穏やかな光が差し込むというお部屋の特徴を生かし、どこにいても自然光を感じられるようにプランニングしました。
素材は、M様がお好きな古材や、真鍮、素材感のあるタイルの組み合わせなどレトロな質感を取り入れながら、間接照明やブラケットライトなど照明にもこだわり、
レトロな雰囲気の中にも新しさを感じるバランスの取れたお部屋となりました。
DATA
- 物件タイプマンション
- 所在地東京都品川区
- 床面積48.95㎡
- 家族構成大人1人
- 構造種別RC造
- 築年1992年
- 設計期間2.5ヶ月
- 工事期間2.5ヶ月
- 物件番号A159
SKETCH
BEFORE & AFTER










DETAIL

キッチンは、Ⅱ型に間取り変更。 マンションの構造上どうしても取り外せない柱も足場板を貼ってポイントに。

天井には、間接照明を取り入れています。 キッチンの腰壁は、テクスチャペイントでアクセントに。

キッチンの壁面は、色々なタイルを組み合わせてレトロでナチュラルな質感に。 ステンレスの天板や、木の素材とも相性◎

キッチンの収納部分は、ラーチ合板を使用し、ラフな雰囲気で仕上げています。

梁は、古材足場板貼り。 床は、古材に合わせて深い色味のフローリングをセレクト。一部を水に強い素材に変えて観葉植物などが置けるコーナーを作りました。

ウォークインクローゼットとの間の壁は、古材の柱を使った少し意匠的な壁に。 上部をオープンにし、天井がひと続きに見えることでお部屋を広く見せる効果も。

クローゼットの棚とハンガーバーは、可動スタイル。

十分な容量のクローゼットスペース。 右側の壁は、有孔ボード貼りにすることでフックを使った壁面収納ができるようになっています。

洗面の左には、折りたたみ式のカウンター。 更に奥には浴室、左手前には洗濯機置き場があります。 ひと続きの空間にすることで、入浴〜着替え〜洗濯〜身だしなみの動線がスムーズになりました。

クローゼットとひと続きの場所の洗面カウンター。 木製の天板にレトロなタイルを組み合わせたオリジナル造作の洗面カウンターです。

室内窓は、古い建具をモチーフにオリジナルで製作しました。

落ち着いた雰囲気の寝室スペース。

玄関収納は、既存の収納に足場板を貼ってリメイクしています。

トイレは真鍮のブラケットライトで飾り付け。

真鍮のタイル見切りと淡いニュアンスカラーのタイル。

型板ガラスを使ったレトロ感のある窓。
DATA
- 物件タイプマンション
- 所在地東京都品川区
- 床面積48.95㎡
- 家族構成大人1人
- 構造種別RC造
- 築年1992年
- 設計期間2.5ヶ月
- 工事期間2.5ヶ月
- 物件番号A159
SKETCH
その他の施工事例

会社情報とサービス
サービス対応エリアはこちらをご確認ください。






