売買
藤和日吉ホームズ 1階
価格
6,780万円
円(非課税)
シンプルに暮らす、素材を感じるリノベーション済み販売物件
東急東横線・日吉駅から徒歩10分。 RC造・1989年築のマンションを、ナチュラルモダンな要素でリノベーションした販売物件です。 白を基調に、無垢の木の温もりと素材の質感を生かした落ち着きのある空間。 整った動線と造作の設えが、暮らしに心地よさをもたらします。 90㎡のゆとりある広さに、静けさと上質さが調和する住まいです。

- 価格6,780万
 - 築年数1989年3月
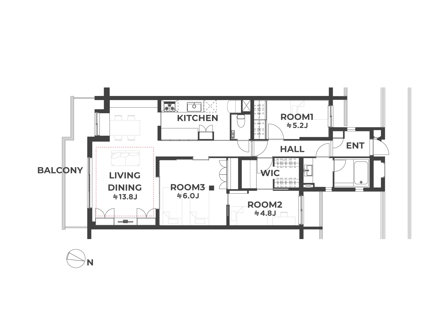
 - 間取り3LDK
 - 権利所有権
 - 面積90.41㎡(壁芯)
 - バルコニー面積13.45㎡
 - 住所神奈川県横浜市港北区箕輪町1-14-1
 - アクセス東急東横線「日吉」駅 徒歩10分
 
DETAIL
物件詳細
素材と暮らしが響き合う空間
リビングだけでなく、廊下や寝室にも無垢のフローリングを使用。
足裏から感じる木の温もりが、暮らしのどの場面にもやさしく寄り添います。
キッチンは、特注のステンレス製。空間の中に凛とした存在感を放ちながらも、道具のように使いこなせる実用性を兼ね備えています。
造作の家具や収納が随所に設えられ、ものが美しく収まる心地よさ。
玄関からつながる土間スペースは、植物を置いたり、自転車のメンテナンスをしたり、時には小さなアトリエのようにも使える自由な余白です。
お部屋にいると裏の慶應の森からカッコウなどの鳥のさえずりが聞こえてとても癒される空間です。
日々の暮らしの中に、自分らしさをのびやかに描ける住まいです。
ENVIRONMENT
周辺環境
緑に寄り添う、日吉の穏やかな住まい
日吉駅から徒歩10分。
慶應義塾大学の緑豊かなキャンパスや公園に隣接し、季節ごとに移ろう木々の風景が日常を彩ります。
駅前には商店街やカフェなど人の気配がありながら、少し奥に入ると静けさに包まれる――
日吉という町らしい、暮らしと自然の距離感が心地よいエリアです。
「横浜市市街地環境設計制度」により提供公園などを含むゆとりある敷地計画のもと、
建物全体に落ち着きと開放感が漂います。
管理人常駐の安心の管理体制が整い、横浜市より「よこはま防災力向上マンション」にも認定。
緑のそばで穏やかに、安心して暮らせる住まいです。
DATA
物件情報
- 管理費21,550円/月
 - 修繕費13,360円/月
 - 構造RC造地上6階建て
 - 所在階1階
 - 総戸数88戸
 - 方角南向き
 - 現況空室
 - 引き渡し即時
 - 管理会社三菱地所コミュニティ
 - 管理形態委託(常駐)
 
- 室内設備・2014年リノベーション (キッチン・床・壁・トイレ・洗面など) ・オーク挽板フローリング(LD・廊下・寝室) ・壁面収納家具付き ・造作の家具・収納多数 ・特注のステンレスのキッチン ・多目的に使える土間空間 ・食洗機 ・床暖房(設置個所:LD、洗面室) ・浴室乾燥機あり
 - 共有設備・駐車場あり(全て平置き) ・駐車場利用料:18,800~20,000円/月 ・駐輪場、バイク置き場有り
 - 備考・ペット可( 小型犬、猫合わせて2匹まで) ・2026年3月まで大規模修繕工事中
 - 周辺環境・マイバスケット箕輪町1丁目店 約340m ・ファミリーマート箕輪町1丁目店 約350m ・SOCOLA 約530m ・日吉台小学校 約1000ⅿ ・日吉台中学校 約1260ⅿ ・箕輪諏訪下第二公園 約20ⅿ
 
CURRENTLY RECRUITING
募集中物件

ABOUT US
会社情報とサービス
EMBRACING YOUR UNIQUENESS, RENOVATIONS THAT RESONATE WITH YOU.
EMBRACING YOUR UNIQUENESS, RENOVATIONS THAT RESONATE WITH YOU.
サービス対応エリアはこちらをご確認ください。























